Budynek architektury współczesnej

BIURO PROJEKTOWE Maciołek Mirosław

ul.Mickiewicza 6c ,47-100 Strzelce Opolskie  

tel.504-100-045 ,email mirekm251@wp.pl

 

PROCES TWORZENIA PROJEKTU INDYWIDUALNEGO

KONCEPCJA

 

1. Koncepcja

Proces projektowania zaczyna się od opracowania koncepcji we współpracy z inwestorem. Na tym etapie:

  • Omawiam główne założenia projektu, uwzględniając miejscowy plan zagospodarowania przestrzennego oraz wymiary działki.

  • Przygotowuję pierwszą wersję koncepcji: rzuty 2D (PDF) z przekrojami oraz wizualizacje 3D elewacji i kondygnacji wraz z umeblowaniem.

  • Inwestor przesyła swoje uwagi – w formie tekstowej lub naniesione bezpośrednio na rysunki w tablecie.

  • Wprowadzam poprawki i odsyłam zaktualizowane rysunki 2D i 3D. Proces powtarzamy, aż uzgodnimy ostateczny kształt koncepcji.

Dzięki wizualizacjom 3D inwestor może dokładnie zobaczyć każdą kondygnację i elewację budynku, co eliminuje ryzyko błędnej interpretacji rysunków.

Podczas opracowywania koncepcji dzielę się swoimi sugestiami i uwagami, sprawdzając jednocześnie zgodność z warunkami technicznymi i wymaganiami konstrukcyjnymi. Zasada jest prosta: inwestor będzie użytkował budynek, więc jego decyzje mają pierwszeństwo, o ile nie naruszają norm technicznych, przepisów ani nie powodują znaczącego pogorszenia estetyki projektu.

PROCES TWORZENIA PROJEKTU INDYWIDUALNEGO

KONSTRUKCJA

 

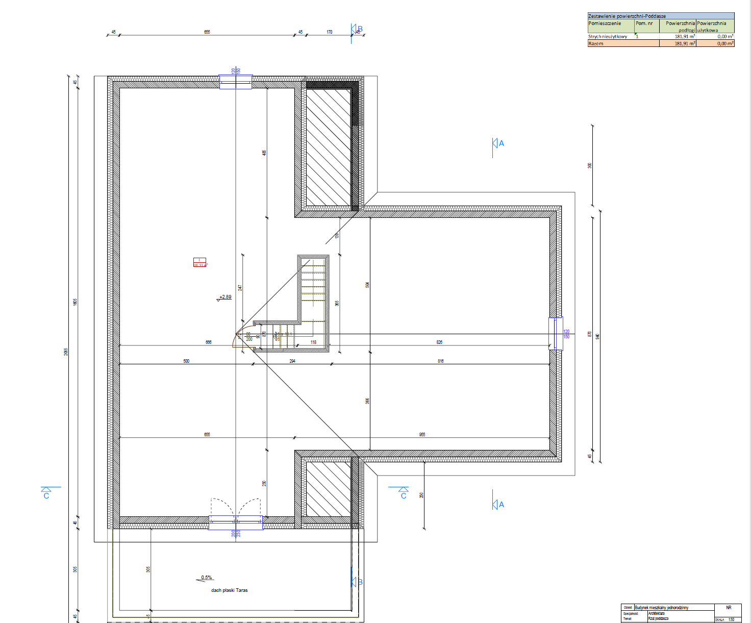
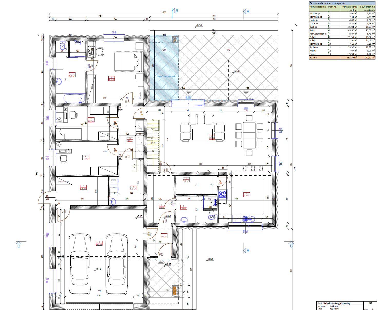
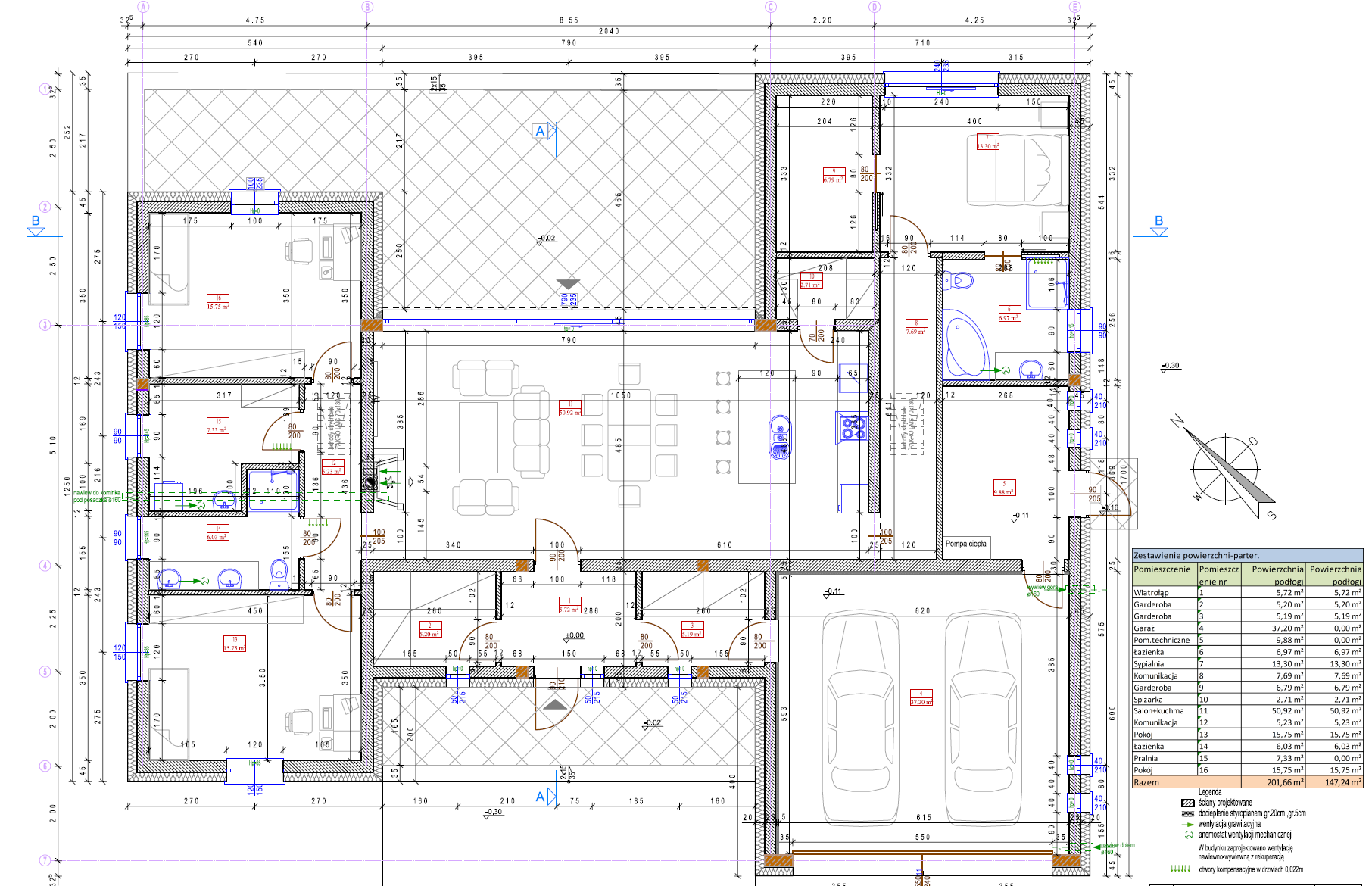
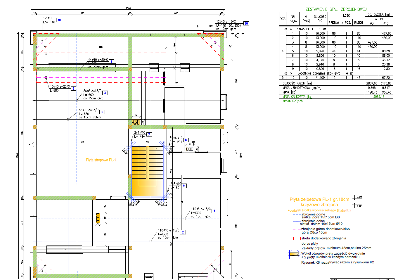
2. Konstrukcja

Konstrukcje i architekturę opracowuje ta sama osoba, co zapewnia pełną spójność i współpracę od etapu koncepcji do ostatecznej wersji projektu.

 

Konstrukcje obliczam w programie AXISVM X8 – nowoczesnym, dynamicznie rozwijanym oprogramowaniu, w którym oblicza się również największe budowle i wieżowce na świecie. Program pozwala na przestrzenne modelowanie budynków, w tym ścian, podciągów, konstrukcji stalowych oraz więźb dachowych. Dzięki temu mogę projektować konstrukcje współczesnych budynków z dużymi rozpiętościami stropów i podciągów, przy mniejszym zużyciu zbrojenia i niższych kosztach realizacji.

 

Obliczoną konstrukcję opracowuję w GstarCAD z nakładkami BIK do stali i żelbetu. Rysunki przygotowuję w skali 1:50 lub 1:25, wraz z zestawieniem zbiorczym stali oraz więźby dachowej.

 

Wszelkie zmiany w konstrukcji i architekturze uzgadniane są błyskawicznie telefonicznie lub mailowo, a w razie potrzeby wpisywane do dziennika budowy. Rysunki zamienne opracowywane są w ciągu kilku dni

 

BUDYNKI MIESZKALNE JEDNORODZINNE

 

Projektuję budynki jednorodzinne – wolnostojące lub w zabudowie bliźniaczej. Realizuję zarówno budynki tradycyjne z dachami dwuspadowymi i wielospadowymi, jak i nowoczesne z dachami płaskimi.

 

Projekt opracowuję wspólnie z inwestorem, uwzględniając jego koncepcje, potrzeby i uwagi. Dlatego nie stosuję sztywnej klauzuli o prawach autorskich ani nie ograniczam zmian nieistotnych, wynikających ze zmiany potrzeb inwestora, przemyśleń czy warunków ekonomicznych.

 

Zmiany wymagające modyfikacji pozwolenia na budowę realizuję szybko i w rozsądnej cenie, aby nie opóźniać procesu budowy.

 

Najważniejsze dla mnie jest, aby inwestor był w pełni zadowolony, budynek został odebrany przez nadzór budowlany i był stabilny konstrukcyjnie

 

PRZEBUDOWA I ROZBUDOWA BUDYNKÓW MIESZKALNYCH JEDNORODZINNYCH

 

Wykonuję rozbudowy, przebudowy, nadbudowy oraz zmiany konstrukcji dachów budynków mieszkalnych jednorodzinnych.

 

Ze względu na ograniczoną dostępność działek warto rozważyć adaptację poddasza na cele mieszkalne lub rozbudowę budynku – dzięki temu obiekt staje się funkcjonalny, przestronny i estetycznie atrakcyjniejszy.

 

Podczas pierwszej wizyty na budowie dokonuję oględzin, sprawdzam stan techniczny budynku oraz analizuję plan zagospodarowania terenu.

Na tej podstawie wyceniam projekt i informuję inwestora, co jest realnie możliwe do wykonania.

 

 

 

BUDYNKI USŁUGOWE ,

BUDYNKI WIELORODZINNE

 

Wykonuję projekty budynków usługowych, w tym hale rzemieślnicze i produkcyjne, obiekty handlowo-usługowe, mieszkalno-usługowe oraz budynki wielorodzinne.

 

Projekty realizowane są zarówno od podstaw, jak i w formie przebudowy z rozbudową.

 

W razie potrzeby projekty są uzgadniane z rzeczoznawcą sanitarnym oraz specjalistą ds. p.poż.

 

Opracowuję również projekty technologiczne  dla gastronomii, służby zdrowia oraz zakładów pracy – zawsze w zakresie wymaganym przepisami i uzgodnieniami z odpowiednimi rzeczoznawcami.

 

 

BUDYNKI GARAŻOWE, GOSPODARCZE I REKREACYJNE

 

Projekty budynków garażowych ,wiat , budynków rekreacyjnych z chęcią opracowuje oczywiście w trójwymiarze 3D bez dodatkowych kosztów.

Przy projektowaniu budynków zawsze uwzględniamy potrzeby i życzenia inwestora, tak aby projekt odpowiadał jego oczekiwaniom zarówno pod względem funkcjonalności, jak i estetyki.

 

 

       USŁUGI BIURA PROJEKTOWEGO

  • Adaptacje gotowych projektów.

  • Projekty indywidualne budynków mieszkalnych (jednorodzinnych i wielorodzinnych), usługowych oraz warsztatów rzemieślniczych.

  • Projekty rozbudowy, przebudowy i zmiany konstrukcji dachów wszelkiego rodzaju budynków.

  • Rozbiórki budynków.

  • Projekty technologiczne, zmiany sposobu użytkowania budynków.

  •  świadectwa energetyczne.

 

 

MENU

ADRES

ul. Mickiewicza 6c

47-100 Strzelce Opolskie

tel. +48 504 100  045

mirekm251@wp.pl

KONTAKT

E-mail
Wiadomość
WYŚLIJ
WYŚLIJ
Formularz został wysłany - dziękujemy.
Proszę wypełnić wszystkie wymagane pola!

Strona www stworzona w kreatorze WebWave.